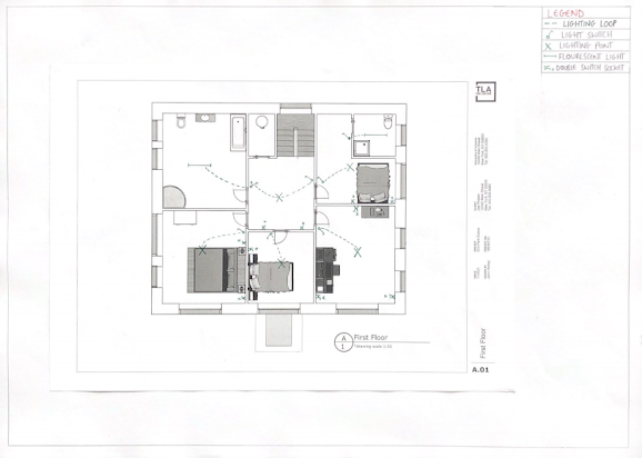
Parallel Wiring

For my house I have opted to go with parallel wiring than opposed to series wiring. It is much more commonly used within a home. It is a reliable method pf wring as failure does not affect all devices/bulbs. A parallel circuit is also a closed circuit where the current divides into two or more paths before coming back together to complete the full circuit. Here, the wiring is configured so that each device is in constant contact with the main circuit pathway. A parallel circuit has many such "off-ramp/on-ramp" loops, so that a failure in any single loop never shuts down the entire circuit.

Outlets, switches, and light fixtures are wired in such a way that the hot and neutral wires maintain a continuous circuit pathway independent from the individual devices that draw their power from the circuit





Comments

Popular posts from this blog

Water Supply

Surface Drainage for surface water and foul water